Swiper Swiper Swiper Swiper Swiper Swiper Swiper

Yachats Library

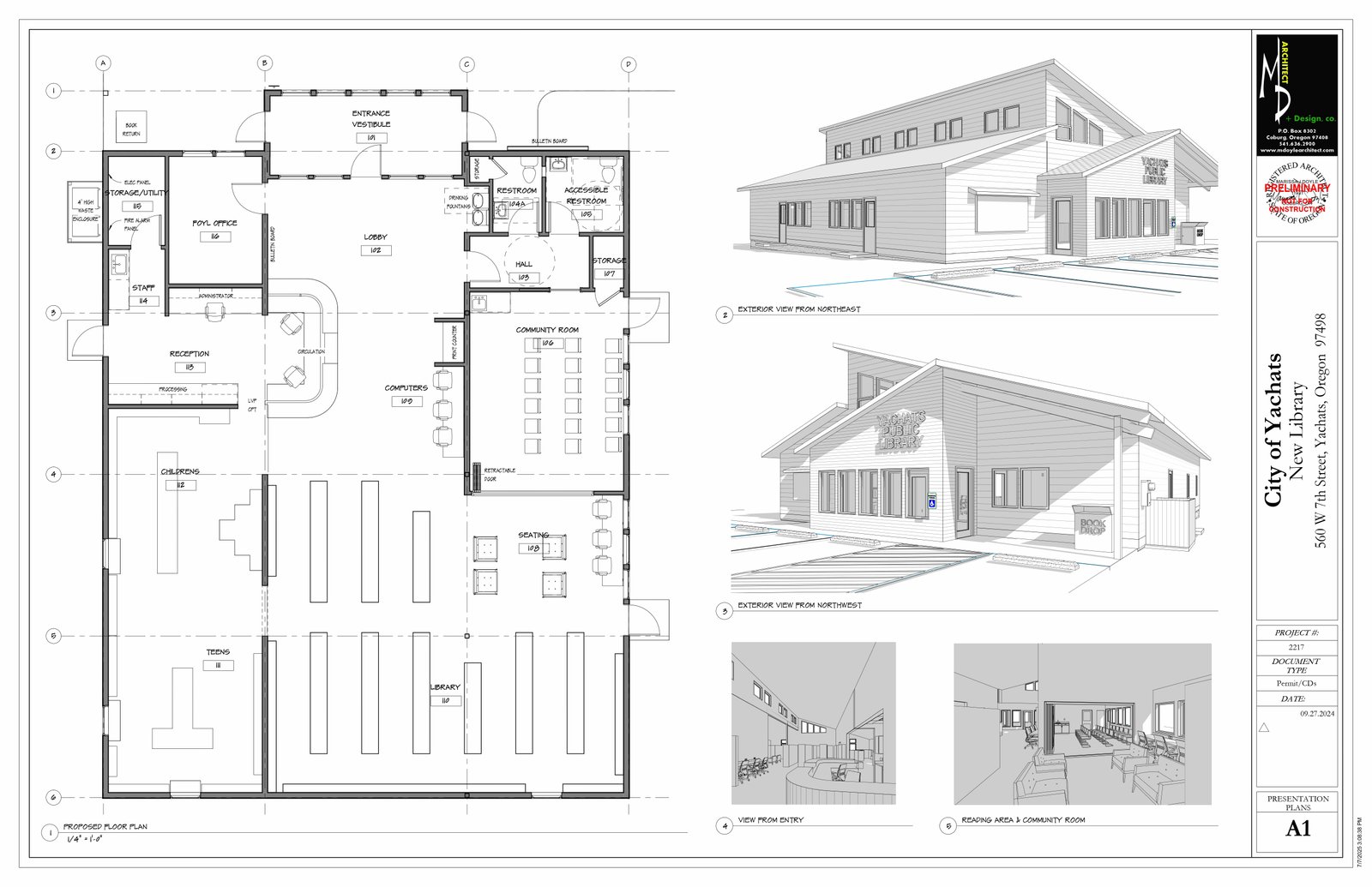
Originally built in the 1970s by community volunteers, the Yachats Library served as a vital public space for over 40 years. Located on a rural coastal site with a unique environmental context, the original building had never undergone a significant renovation. Our initial design approach focused on a sensitive remodel to preserve the library’s character—vaulted ceilings, home-like scale, and bands of windows—while addressing accessibility, space limitations, and long-term functionality.

However, during early site investigations, we discovered sand directly beneath the existing foundation, requiring extensive structural reinforcement that would have exceeded the project’s budget. In partnership with the City and a community-based design committee, the team made the difficult decision to pursue new construction instead.

The replacement library was designed to reflect the welcoming, informal spirit of the original building while providing improved accessibility, durability, and civic presence. The new layout includes an ADA-compliant restroom, a dedicated community room, and an office for Friends of the Library. Wood detailing and generous natural light were used throughout to evoke the original warmth and character. The design process involved regular collaboration with a committee of local residents to ensure the building remained rooted in community values and responsive to Yachats' rural context and long-standing volunteer legacy.